Thông tin cơ bản bồn cầu TOTO MS855DW16 1 khối nắp rửa Washlet TCF23410AAA:
- Nắp rửa Washlet đa chức năng thuộc dòng C2
- Men sứ chống dính CeFiONtech ngăn chặn bụi bẩn và tích tụ vi khuẩn
- Hệ thống xả: Tornado ( xả xoáy) mạnh mẽ, hiệu quả ( 4.5L/3L)
- Loại xả: nút nhấn đôi
- Áp lực nước sử dụng: 0.05~ 0.70 ( Mpa)
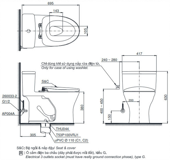
- Tâm xả: 305mm ( bao gồm bích nối sàn và van dừng)
- Mặt nước đọng: 105 x 143 ( mm)
- Kích thước sản phẩm ( DxRxC): 695 x 417 x 630 ( mm)
Nên lắp ổ cắm điện 3 trấu gần bàn cầu theo bản vẽ ( 220V)
Bảo hành 2 năm kể từ ngày giao hàng.
Bàn cầu TOTO 1 khối MS855DW16#XW gồm có:
- Thân cầu C855D ( Việt Nam)
- Nắp rửa điện tử Washlet TCF23410AAA- W16 ( Malayxia)
Tính năng bồn cầu TOTO MS855DW16 1 khối nắp rửa Washlet:
- Thiết kế sang trọng
- Men sứ chống dính CeFiONtech ngăn chặn bụi bẩn và tích tụ vi khuẩn
- Chức năng vòi rửa massage đa chức năng: rửa trước, rửa sau, linh hoạt điều chỉnh vị trí vòi và lực nước
- Rửa bằng nước ấm, khử mùi, sấy khô và sưởi ấm bệ ngồi
- Tự động tiết kiệm điện theo thời gian cài đặt và tự vệ sinh vòi Ewater+
- Bảng điều khiển bên hông
- Công nghệ xả xoáy mạnh mẽ và hiệu quả.
Bản vẽ kỹ thuật cầu TOTO 855:

Giới thiệu về Washlet:
Nắp rửa điện tử WASHLET là sản phẩm đột phá của TOTO – trở thành thương hiệu nắp rửa điện số 1 thế giới từ năm 2017 với hơn 60 triệu sản phẩm được bán ra toàn cầu. Với ý nghĩa làm sạch toàn diện, nắp rửa thông minh WASHLET còn đem lại cảm giác hài hòa và khỏe mạnh cho cuộc sống hàng ngày nhờ vào những tiện ích: Công nghệ phun sương khử trùng EWATER+ tiêu diệt 99,99% vi khuẩn, vòi rửa đa chức năng, nắp đóng mở tự động, sưởi ấm bệ ngồi, khử mùi, sấy khô. Với nắp rửa điện tử WASHLET, người dùng hoàn toàn dễ dàng lắp đặt được với bàn cầu thông thường.


Đánh giá
Chưa có đánh giá nào.