Thông tin cơ bản bồn cầu TOTO MS857DW16 1 khối:
- MS857DW16#XW là bàn cầu khối của thương hiệu thiết bị vệ sinh TOTO sản xuất vào 2025
- MS857DW16 là sự kết hợp giữa thân cầu C857D và nắp rửa điện tử Washlet TCF23410AAA
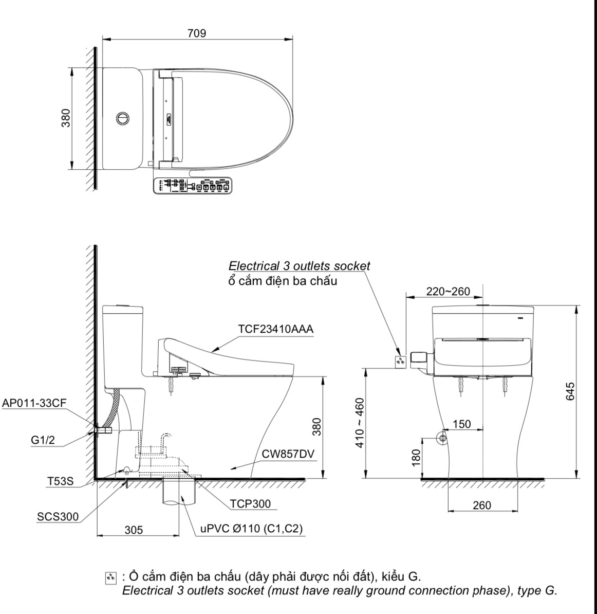
- Kích thước sản phẩm ( DxRxC): 709 x 380 x 645 ( mm)
- Thiết kế sang trọng: thân dài, thân kín
- Hệ thống xả: Tornado ( xả xoáy) mạnh mẽ, hiệu quả ( 4.5L/3L)
- Loại xả: Nút nhấn đôi
- Công nghệ men sứ chống dính CeFiONtech, hiệu quả vượt trội lâu dài
- Áp lực nước sử dụng: 0.05~ 0.70 ( Mpa)
- Tâm xả: 305mm ( bao gồm bích nối sàn và van dừng)
- Mặt nước đọng: 105 x 143 ( mm)
Bảo hành 2 năm kể từ ngày giao hàng.
Bồn cầu TOTO MS857DW16 1 khối gồm có:
- Thân cầu C857D – Việt Nam
- Nắp rửa điện tử TCF23410AAA– Malayxia
Tiện ích bàn cầu TOTO MS857DW16 1 khối:
- Thiết kế sang trọng
- Men sứ chống dính CeFiONtech ngăn chặn bụi bẩn và tích tụ vi khuẩn
- Chức năng vòi rửa massage đa chức năng: rửa trước, rửa sau, linh hoạt điều chỉnh vị trí vòi và lực nước
- Vệ sinh vòi rửa bằng Ewater+
- Rửa bằng nước ấm, sưởi ấm bệ ngồi, phun sương lòng bàn cầu và tự vệ sinh vòi rửa trước và sau sử dụng
- Bảng điều khiển bên hông
- Công nghệ xả xoáy mạnh mẽ và hiệu quả.
Bản vẽ kỹ thuật cầu TOTO MS857DW16:

Giới thiệu về Washlet:
Nắp rửa điện tử WASHLET là sản phẩm đột phá của TOTO – trở thành thương hiệu nắp rửa điện số 1 thế giới từ năm 2017 với hơn 60 triệu sản phẩm được bán ra toàn cầu. Với ý nghĩa làm sạch toàn diện, nắp rửa thông minh WASHLET còn đem lại cảm giác hài hòa và khỏe mạnh cho cuộc sống hàng ngày nhờ vào những tiện ích: Công nghệ phun sương khử trùng EWATER+ tiêu diệt 99,99% vi khuẩn, vòi rửa đa chức năng, nắp đóng mở tự động, sưởi ấm bệ ngồi, khử mùi, sấy khô. Với nắp rửa điện tử WASHLET, người dùng hoàn toàn dễ dàng lắp đặt được với bàn cầu thông thường.


Đánh giá
Chưa có đánh giá nào.