Thông số bồn cầu thông minh TOTO CS989VT/TCF9768WZ/T53P100VR:
- Mã sản phẩm: CS989VT/TCF9768WZ/T53P100VR là Bàn cầu điện tử NEOREST thuộc bộ sưu tập NEOREST AH
- Bảng điều khiển từ xa
- Hệ thống xả: Tornado Siphon Jet Hybid
- Lượng nước xả: 3.8/3L
- Thiết kế: Thân dài, thân kín
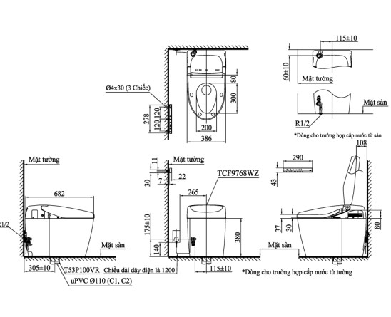
- Tâm xả: 305mm
- Kích thước: 682 x 386 x 528 mm (dài x rộng x cao)
- Áp lực nước: 0.05MPa~0.75MPa
- Màu sắc: Màu trắng
- Bao gồm van khóa và gioăng đế
- Mã sản phẩm bồn cầu thoát ngang: CS989PVT/TCF9768WZ
Bảo hành 2 năm kể từ ngày giao hàng và miễn phí lắp đặt.
Bàn cầu tự xả nước TOTO CS989VT/TCF9768WZ/T53P100VR gồm 3 bộ phận:
- Thân cầu CS989VT– Xuất xứ: Nhật Bản
- Nắp rửa điện tử TCF9768WZ: – Xuất xứ: Malayxia
- Bích nối sàn: T53P100VR – Xuất xứ: Việt Nam
Tính năng bồn cầu thông minh TOTO CS989VT/TCF9768WZ/T53P100VR Neorest:
- Thiết kế sang trọng, hiện đại tích hợp nhiều tính năng: khử mùi, sưởi ấm nắp ngồi, vòi rửa đa chức năng sấy khô, xả tự động.
- Nắp tự động đóng/mở
- Tự vệ sinh vòi trước và sau khi sử dụng
- Công nghệ khử trùng Ewater+
- Men sứ chống dính CeFiONtect giúp lòng bàn cầu siêu nhẵn, hạn chế tối đa các vết bẩn, vi khuẩn
- Hệ thống xả Tornado kết hợp xả thẳng Siphon Jet Hybid siêu mạnh, siêu êm, tiết kiệm nước (3.8/3L)
Bản vẽ kỹ thuật bàn cầu thông minh TOTO CS989VT/TCF9768WZ:
Giới thiệu về Washlet:
Nắp rửa điện tử WASHLET là sản phẩm đột phá của TOTO – trở thành thương hiệu nắp rửa điện số 1 thế giới từ năm 2017 với hơn 60 triệu sản phẩm được bán ra toàn cầu. Với ý nghĩa làm sạch toàn diện, nắp rửa thông minh WASHLET còn đem lại cảm giác hài hòa và khỏe mạnh cho cuộc sống hàng ngày nhờ vào những tiện ích: Công nghệ phun sương khử trùng EWATER+ tiêu diệt 99,99% vi khuẩn, vòi rửa đa chức năng, nắp đóng mở tự động, sưởi ấm bệ ngồi, khử mùi, sấy khô. Với nắp rửa điện tử WASHLET, người dùng hoàn toàn dễ dàng lắp đặt được với bàn cầu thông thường.




Đánh giá
Chưa có đánh giá nào.