Thông tin cơ bản chậu lavabo TOTO LT505T#XW âm bàn:
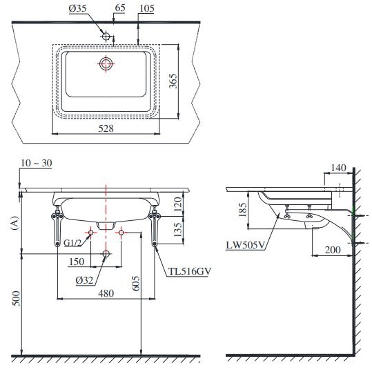
- Kích thước : Sâu 365x Rộng 528x Cao 185 (mm)
- Màu sắc: Màu trắng
- Có men chống bám CeFiONtech
- Xuất xứ: Việt Nam
- Đã bao gồm bộ giá đỡ TL516GV
- Không bao gồm vòi và bộ xả
Tính năng chậu Lavabo TOTO LT505T#XW âm bàn:
- Kiểu dáng sang trọng
- Lòng chậu rộng và có lỗ thoát tràn.
Chi tiết phụ kiện:
- Thân chậu: L505T#XW
- Bộ giá đỡ: TL516GV
Bản vẽ kỹ thuật chậu rửa mặt TOTO L505T#XW:

Giới thiệu về TOTO:
TOTO là nhà sản xuất nhà vệ sinh lớn nhất thế giới được thành lập vào năm 1917 và được biết đến với việc phát triển Washlet và các sản phẩm phái sinh. Mục tiêu của TOTO là trở thành một công ty đóng góp cho sự phát triển của xã hội và được mọi người trên thế giới tin tưởng.
Để đạt được mục tiêu đó, TOTO sẽ tạo ra một phong cách cuộc sống phong phú, thoải mái với các thiết bị xí bệt vệ sinh nhằm đáp ứng sự hài lòng vượt hơn cả mong muốn của khách hàng như: cung cấp các sản phẩm và dịch vụ chất lượng cao dựa trên những nổ lực nghiên cứu và phát triển không ngừng. Ngoài ra, TOTO luôn hướng đến việc bảo vệ môi trường toàn cầu bằng việc sử dụng hiệu quả, tiết kiệm nguồn tài nguyên và năng lượng hạn hẹp…
Lưu ý:
- Không sử dụng chất tẩy rửa bàn cầu để vệ sinh chậu. Vì có thể gây ăn mòn bề mặt vòi rửa và ống thải.
- Các bước vệ sinh chậu rửa:
- Nhúng khăn mềm vào nước sạch, vắt bớt nước sao cho khăn vẫn còn ẩm. Sau đó, đổ chất tẩy rửa lên khăn và lau xung quanh bề mặt sản phẩm. (Không để chất tẩy rửa bắn lên vòi chậu vì sẽ làm ăn mòn vòi chậu.)
- Dùng bàn chải mềm hoặc mút mềm để cọ sạch vết bẩn.
- Rửa lại bằng nước để làm sạch chất tẩy rửa trên bề mặt sản phẩm
- Lau khô sản phẩm bằng khăn mềm.


Đánh giá
Chưa có đánh giá nào.